网站首页
关于我们
企业文化
产品展示
表面处理
资质荣誉
厂房设备
新闻中心
在线留言
联系我们
产品展示
/
Product display
顺鑫阁门窗系统系列产品
普通推拉门窗系列产品
隔热节能推拉门窗系列产品
吊挂推拉门系列产品
普通平开门窗系列产品
隔热节能平开门窗系列产品
铝塑铝隔热节能平开门窗系列
地弹门系列产品
扶手系列产品
包钢管橱窗系列产品
幕墙系列产品
中梃T连接型材汇总
扣条型材汇总
角码型材汇总
转角型材汇总
纱窗型材汇总
百叶型材汇总
卷帘型材汇总
方管、铝条、铝管、角铝、槽
装饰材料型材汇总
弯弧型材汇总
拼管型材汇总
肯德基门系列
生态木70系列
31
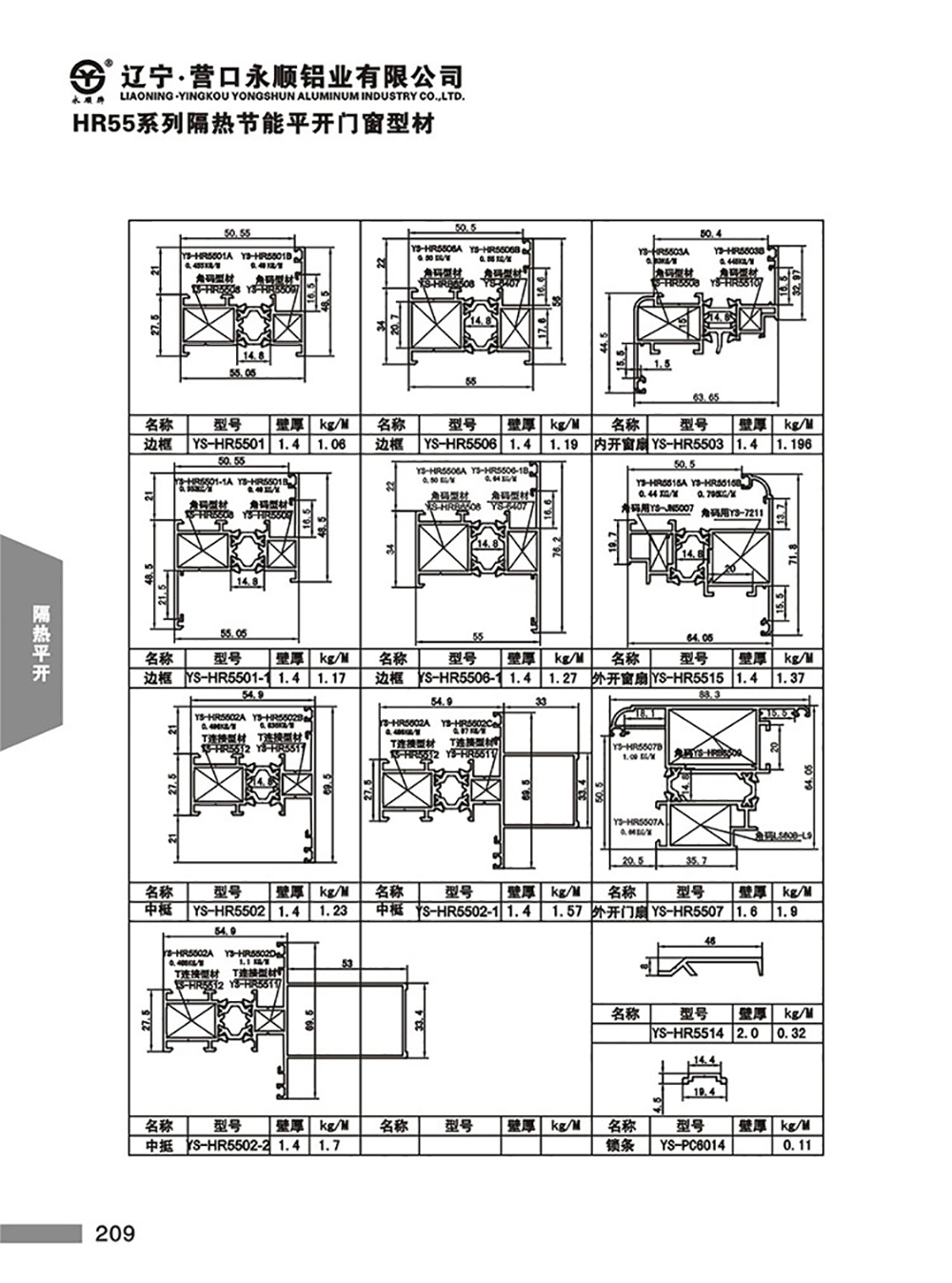
YS-HR55系列隔热节能平开门窗
发布时间: 2020-02-24 13:42
商品信息
上一个:
YS-HR55系列隔......
下一个:
YS-HR55系列隔......